• E8
  • Portfolio
  • STUDIO
  • Contact
E8 Architecture
  • E8
  • Portfolio
  • STUDIO
  • Contact

MARYLEBONE SQUARE

Client: Concord London

Sector: Mixed use

Area: 250,000 sqft

Value: £125m

Status: Completed 2023

“The architects have responded imaginatively to all the different constraints of the site, producing a design that will genuinely enhance the character and appearance of the area” 

– English Heritage, February 2015

The redevelopment of this entire city block provides 79 private and affordable apartments, together with retail, restaurants and community facilities to all 4 streets, and public car parking in the basement.

The greatly improved public realm provides active shop frontages, wider streets and a new home for the weekly Marylebone Farmers’ Market.

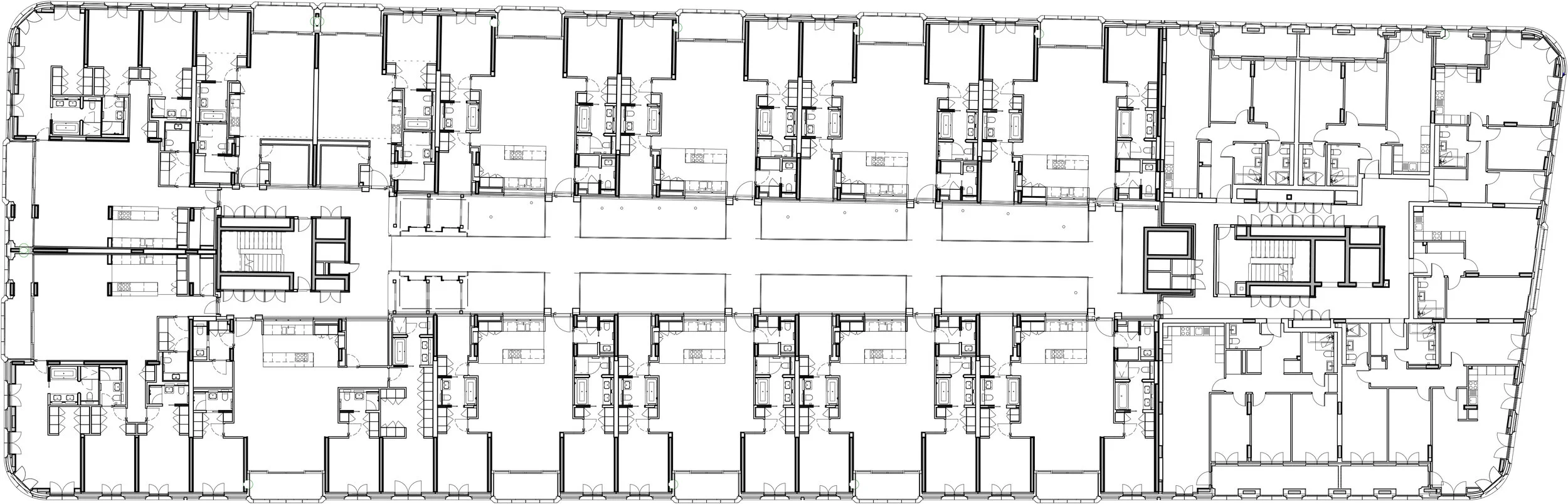
Internally, it is a building without corridors - all the apartments are reached via a beautiful central courtyard. The apartments themselves are meticulously planned, each one enjoying a large verandah and generously proportioned rooms.

The concrete structure is clad in a distinctive and robust glazed ceramic facade, with cast aluminium balustrades adding to the richness of the detail. The architecture fits in with its Marylebone setting whilst being uncompromisingly contemporary.

marylebone square aerial view.jpg
Colorminium_Marylebone Square_©Hufton+Crow_008.jpg
MSQ2.jpg
Moxon - typical floorplan.jpg
Colorminium_Marylebone Square_©Hufton+Crow_005.jpg
Colorminium_Marylebone Square_©Hufton+Crow_003.jpg
Colorminium_Marylebone Square_©Hufton+Crow_006.jpg
concord_marylebone_square_apartment lounge 1a.jpg
concord_marylebone_square_apartment balcony 2.jpg